Lunes, 29 de diciembre de 2025
Volver Salamanca RTV al Día
El parque Lazarillo de Tormes va tomando su nueva forma en Salamanca
X

urbanismo

El parque Lazarillo de Tormes va tomando su nueva forma en Salamanca

Actualizado 31/05/2020

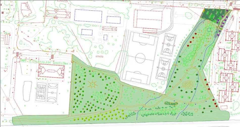
El Ayuntamiento de la ciudad pretende crear un espacio natural que una los barrios de Tejares y Buenos Aires

El Ayuntamiento de Salamanca se encuentra ejecutando las obras para la regeneración del Parque Lazarillo de Tormes de forma que aumente sus valores como espacio natural de disfrute para los vecinos. El proyecto tiene como objetivo actuar sobre un espacio limítrofe entre los barrios de Tejares y Buenos Aires. Con el fin de acercar a los usuarios al parque, se acondicionará el acceso desde la Avenida Juan Pablo II, eliminando el vallado de madera y generando una estancia más atractiva. Por otro lado, se reacondicionarán todos los paseos con jabre granítico.

La característica principal de este material es la ausencia de barro una vez mojado. De este modo, se permitirá la movilidad peatonal y ciclista. Asimismo, se instalarán bolardos de hormigón en el acceso oeste desde el Barrio de Buenos Aires, donde actualmente se encuentran diversos elementos de piedra.

Mediante la instalación de una pasarela de madera se conectará la zona del parque con la nueva zona deportiva. Se creará una nueva zona infantil en el espacio central del parque, en madera de robinia y pavimento de gravilla, y a la entrada de la Avenida Juan Pablo II se instalará una nueva base del Sistema de Préstamo de Bicicletas ?SALenBICI?, que dada su proximidad a la Ciudad Deportiva de Tejares será muy demandada.

Las actuaciones también contemplan la mejora del alumbrado público mediante la instalación de nuevas luminarias LED, que permitirán un consumo reducido y una baja contaminación lumínica, y se renovará el cableado con aluminio para evitar vandalismos.

Apuesta por la biodiversidad

La regeneración del Parque Lazarillo de Tormes incluye la reforestación de las zonas verdes, utilizando árboles frutales y especies vegetales autóctonas, controlando las especies exóticas invasoras. Árboles como el peral, el manzano, la higuera, así como las arbustivas y aromáticas generarán un corredor verde natural y adaptado. También se creará una nueva red de agua potable para la instalación de bocas de riego que permitirán el correcto mantenimiento del arbolado.

El Parque contará con un humedal artificial de 100 metros cuadrados, aproximadamente, que permitirá la generación de biodiversidad en la zona. Para ello se instalará una lámina impermeable con gravas, sustrato, rocas y plantas acuáticas (espadañas y juncos) disponiendo de bocas de riego que facilitarán su mantenimiento anual.