Sábado, 24 de enero de 2026
Volver Salamanca RTV al Día
Villoria aprueba el proyecto del nuevo Centro Multiservicios y se prepara para iniciar las obras
X

LAS VILLAS

Villoria aprueba el proyecto del nuevo Centro Multiservicios y se prepara para iniciar las obras

Actualizado 04/10/2025 17:23

Se dividirá en varias fases de inversión, esperando contar además con apoyos de otras instituciones

El Ayuntamiento de Villoria ha dado luz verde en pleno al proyecto del nuevo Centro Multiservicios, una infraestructura muy esperada por los vecinos y que, una vez reciba el informe favorable de la Diputación, saldrá a licitación pública para iniciar las obras de la primera fase.

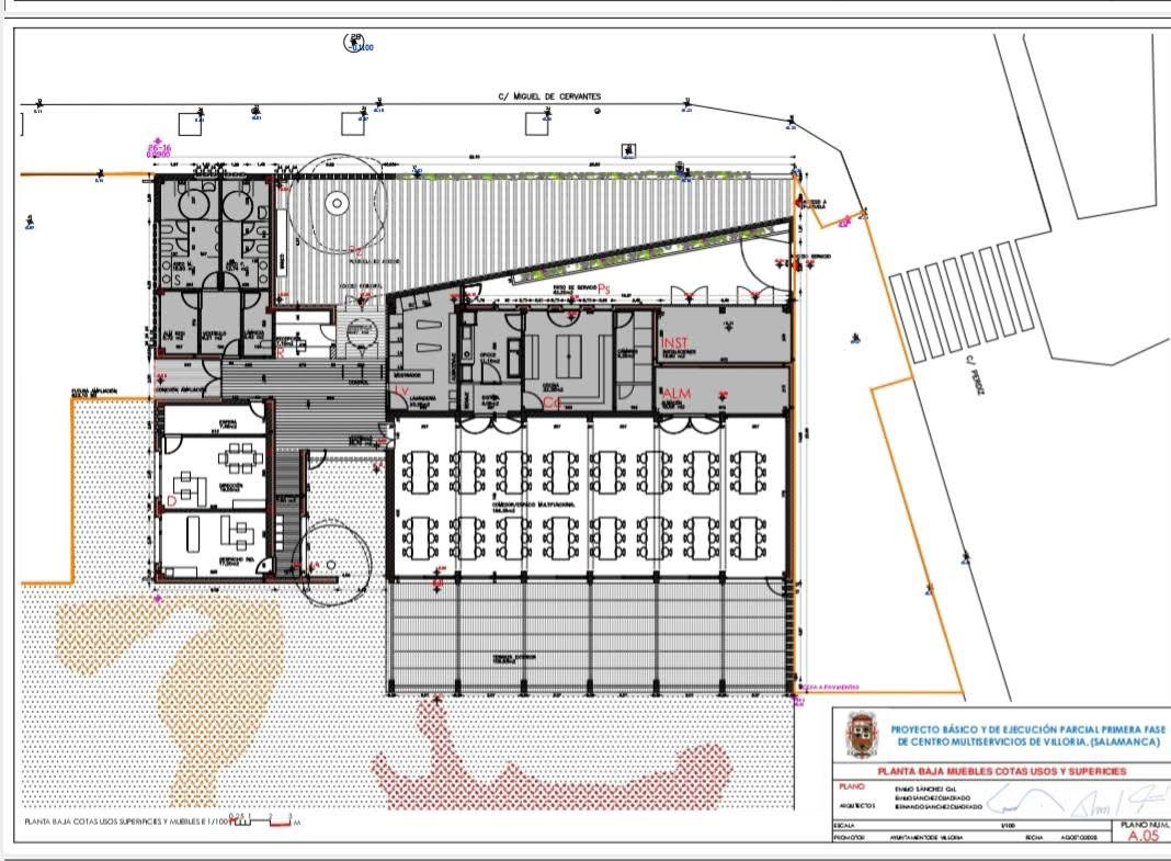
Tal y como ha detallado el Consistorio, el futuro edificio contará con 458,21 metros cuadrados de superficie construida y más de 250 m² de zonas exteriores destinadas a dependencias complementarias. El diseño ha sido elaborado por el estudio de arquitectura de Emilio Sánchez Gil, reconocido por su trayectoria profesional y experiencia en este tipo de instalaciones. El proyecto contempla no solo las dotaciones necesarias desde el inicio, sino también la posibilidad de futuras ampliaciones para adaptar el centro a nuevas necesidades.

Para financiar esta primera fase, el Ayuntamiento ya dispone de 210.000 euros, procedentes de fondos municipales y de los Planes Provinciales 2024-2025. Estos fondos, distribuidos por la Diputación en función del número de habitantes de cada municipio, permitirán poner en marcha las primeras obras.

La segunda fase del proyecto está prevista para financiarse a través de los Planes Provinciales 2026-2027, con una dotación estimada de 230.000 euros. De cumplirse el calendario previsto, en un plazo aproximado de dos años Villoria habrá invertido el 50 % del coste total de la obra.

Desde el Ayuntamiento se destaca que esta actuación responde a una reivindicación histórica de los villorejos, y subrayan que será la primera vez que se pasa “de las palabras a los hechos” en relación con este servicio. Asimismo, el equipo de gobierno ha hecho un llamamiento a la unidad institucional y ciudadana para impulsar el proyecto y lograr apoyos adicionales de otras administraciones públicas.

“Con este proyecto llamaremos a las puertas de todas las administraciones para que su ayuda nos agilice su construcción. Ojalá recibamos la ayuda necesaria por ser Villoria, y no por que gobiernen unas siglas”, han señalado fuentes municipales.