Sábado, 06 de diciembre de 2025
Volver Salamanca RTV al Día
La Junta de Castilla y León destina 900.000 euros a la reforma total de la estación de autobuses...
X

presentado el proyecto de remodelación

La Junta de Castilla y León destina 900.000 euros a la reforma total de la estación de autobuses...

Actualizado 25/01/2019

El consejero de Fomento, Juan Carlos Suárez-Quiñones, presentó el proyecto en el Ayuntamiento ante el Alcalde, los concejales y un grupo de vecinos

Béjar ha recibido esta mañana la visita del consejero de Fomento de la Junta de Castilla y León, Juan Carlos Suárez-Quiñones, que ha presentado el proyecto de remodelación de la estación de autobuses de la ciudad. Ha sido recibido en el Ayuntamiento por el alcalde, Alejo Riñones, los concejales y un grupo de vecinos, interesados por conocer las novedades de las instalaciones, además del delegado de la Junta en la provincia, Bienvenido Mena.

?No estamos anunciando una futura obra, sino un proyecto que ya está en marcha. El proyecto de licitación de la obra está desde hoy disponible en la página de la Junta?. Así ha comenzado el consejero la explicación sobre la obra, que implicará un lavado de cara integral de la estación. El presupuesto con el que se cuenta es de 884.876 euros y las obras poseen un plazo de ejecución de 18 meses. Sin embargo, no se pudo asegurar el momento exacto del inicio de los trabajos, aunque presumiblemente tendrá lugar en verano.

Alejo Riñones, alcalde de la ciudad, agradeció el esfuerzo de la Junta y avanza un buen año de mejoras para Béjar: ?Necesitamos toda clase de manos amigas por la situación de crisis que atraviesa Béjar y esto se suma al plan de reindustrialización que se ha anunciado recientemente; por lo que 2019 va a ser un año importante para Béjar. Han pasado 20 años desde que no tenemos tren, por lo que la carretera se ha convertido en algo primordial para nosotros?.

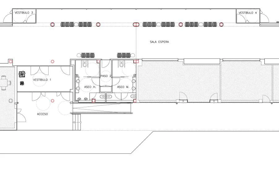
Ignacio Pérez Santos, director general de Transporte de Castilla y León, estuvo en la reunión presente para dar cuenta de los detalles del proyecto. La estación de Béjar, creada a inicios de los años 80, ha sufrido de un mal mantenimiento y presenta problemas de aislamientos, impermeabilizaciones, iluminación e imagen, resultando en una estación obsoleta y con unos baños con malos olores provocados por continuos atascos. En la zona exterior se hará una limpieza completa con agua a presión, se repararán canaletas, cubiertas y revestimiento de la fachada. Se crearán espacios diáfanos acristalados para zonas como la sala de espera. También se contará con nueva cartelería y señales por todo el recinto.

Una de las actuaciones más importantes será la cubierta plana actual de la zona de locales comerciales, que será sustituida por una cubierta inclinada con chapa prelacada sobre una estructura metálica. Se retirará la cubierta de la zona de dársenas y se instalará un panel sándwich, así como la limpieza y sellado de la cubierta de chapa de la marquesina en la misma zona.

En la zona interior se actuará en el vestíbulo principal, la sala de espera, los aseos y la primera planta. Se crearán espacios más abiertos derribando algunos muros y sustituyendo paredes por panales acristalados. Se instalarán nuevos falsos techos y se renovará por completo la instalación eléctrica, la fontanería y el saneamiento. Los aseos se reformarán, adaptándolos a la normativa vigente, incluyendo adaptación para personas con discapacidad. Los trabajos de reforma se compaginarán con la actividad habitual de la estación en el momento en que se produzca, al igual que se hace en Salamanca.

Suárez Quiñones añadió que el proyecto de reforma se suma a otros que se están llevando a cabo en la provincia, como la gran reforma de la estación de autobuses en Salamanca, la ya realizada en Peñaranda de Bracamonte o la que se se va a llevar a cabo en un futuro en Ciudad Rodrigo. Finalmente, el consejero atendió a los vecinos que plantearon dudas, preguntas y propuestas sobre el proyecto y los propios servicios de autobús.